MLS #43251
Aquinnah Real Estate
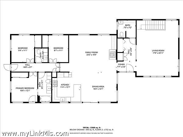
Aquinnah Retreat, set on a private 1.1-acre lot! This beautiful single-family home was lovingly built & cared for by one family, offering peaceful surroundings & beautiful ocean views, now, move-in ready for new owners to relax & put their own personal touch to. The wrap-around deck provides a stunning viewpoint to take in the coastal air & setting. Inside, the kitchen & dining area are filled with natural light thanks to skylights and large windows, flowing into a cozy sitting area with a fireplace—perfect for gathering with friends and family. The left wing of the home includes three bedrooms, a full bath, and a half bath. On the opposite end, a spacious great room features cathedral ceilings, oversized windows framing ocean views, and a second half bath with laundry hookups. The lower level is a walk-out that includes a bathroom and bonus room, offering potential for living space, guest accommodation, or rental income. A heated studio, two storage sheds, and an outdoor shower add to the home’s flexibility. New roof (2021), Title 5, & Smoke passed—this special Aquinnah property is ready for its next chapter!
Share
Price: $1,795,000
453 Lighthouse Road
Aquinnah, 02568
Aquinnah, 02568
Type: Single Family
Beds: 3
Baths: 2.0
Lot Size: 1.10 acres
Square Footage: 2308 sqft.
Area
Aquinnah
Subdivision
North
Zoning
R1
Water
Well
Sewer
Septic
Year Built
1970
Year Renovated
1992
Second Dwelling
Potential
Furnished
Furnished
Rooms
11
Half Baths
2
First Floor Bedrooms
3
Fireplaces
1
Flooring
2
Heating
Gas\FHW
Yard
Yes
Outdoor Spaces
Beach Access - Association
Parking
Yes
Dryer
hookup
Refrigerator
Yes
Stove
Yes
TV
Cable
Washer
hookup
Listing Agent
Brennan, Chelsea
Listing Office
Lamacchia Realty
